CARACTERISTICI GENERALE LOCUINTA
Dimensiuni si suprafete
-camere locuibile = 5
-suprafata parter = 138,95mp (suprafata Utila Parter = 124,95mp)
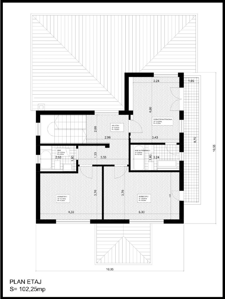
-suprafata etaj = 102,25mp (suprafata utila mansarda = 92,25mp
-suprafata desfasurata parter + etaj = 241,20 mp
Materiale de constructie utilizate
Fundatii, beton armat.
Suprastructură:
-plansee, stilpi, grinzi –beton armat.
-zidarie interioara, exterioara –zidarie caramida, bca.
Nota: Cladirea se preteaza construirii din structura de lemn sau metalica, de tip framing.




| Autor | dr. arh. Andrei Năstase |
| Comandă proiect | 0771038079 |
| Constructor | Comara Product SRL |
| Ofertă construcție | 0762448361 |

Lasă un comentariu