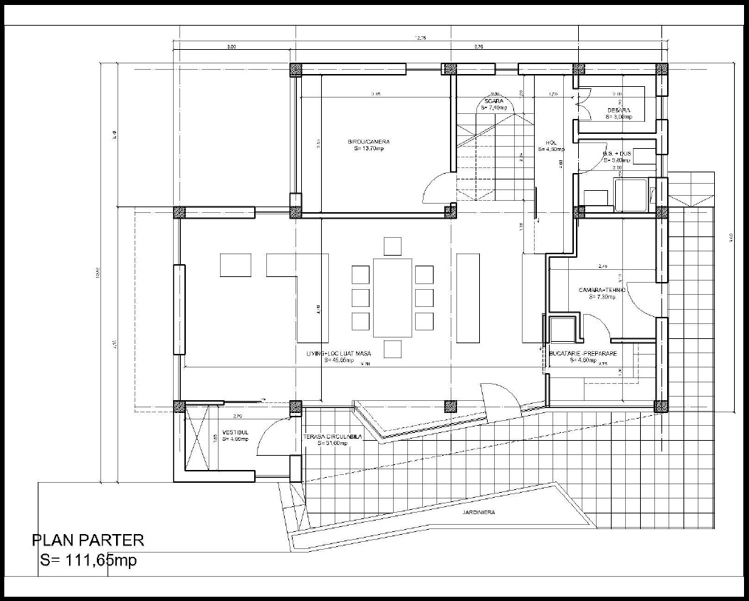
CARACTERISTICI GENERALE LOCUINTA
Dimensiuni si suprafete
-numar camere = 6
-suprafata parter = 111,65mp (suprafata Utila Parter = 94,65mp)
-suprafata etaj = 111,65mp (suprafata utila etaj = 94,65mp) –
suprafata terasa circulabila + scara = 65,80mp
-suprafata desfasurata parter + mansarda = 289,10 mp
Materiale de constructie utilizate
-fundatii: beton armat –
suprastructura
-plansee, stilpi, grinzi –beton armat,
-zidarie interioara, exterioara –zidarie caramida, bca,




| Autor | dr. arh. Andrei Năstase |
| Comandă proiect | 0771038079 |
| Constructor | Comara Product SRL |
| Ofertă construcție | 0762448361 |

Lasă un comentariu